Beste Büros Logo
City
Merken
Objektnummer: 180

Geesthof | Ihr New-Work Büro in Hauptbahnhofnähe

Besenbinderhof 41

Objektbeschreibung

Der 1927 erbaute Geesthof überzeugt durch seine einzigartige und historische Fassade. Als Tragwerk des Gebäudes dient ein Eisenskelettbau. Das Innendesign ist im Stil der 20er Jahre gehalten und wirkt durch die Kombination mit modernen Elementen stilvoll. Die Farbgestaltung der Räume ist in Anlehnung an das weltbekannte Gemälde von Tamara de Lempicka, "Junges Mädchen in grün" erfolgt. Die Büroflächen lassen sich als Open-Space-Konzepte, Einzelräume, oder ruhige abgetrennte Bereiche nach Mieterwunsch flexibel gestalten. Das 5. und 6. Obergeschoss können nur zusammenhängend angemietet werden.

Lage

Der historische Geesthof befindet sich im Herzen von St. Georg. Aufgrund der Nähe zum Hamburger Hauptbahnhof wird eine hervorragende Anbindung an das öffentliche Verkehrsnetz gewährleistet. Der grüne August-Bebel Park lässt sich fußläufig in nur 3 Minuten erreichen und lädt zum Entspannen in der Pause ein. In unmittelbarer Umgebung bietet das Café "The Garden`s Table " leckeren Cappuccino und Snacks für zwischendurch.
Besichtigungstermin anfragen

Weitere Angaben

  • Verfügbare Fläche (ca.) 1.461 m2
  • Teilbare Fläche (ca.) 228 m2
  • Mietpreis ab 21,25€/m2 mtl.
  •  
  • Nebenkosten 3,95€/m2 mtl.
  •  
  • Energiepass befreit (Denkmalschutz)
  • Baujahr 1927
  • Provision* Provisionsfrei für den Mieter bei Anmietung von mind. 5 Jahren Laufzeit.

* Abhängig von der Mietdauer (siehe AGB)
Alle Preisangaben verstehen sich zzgl. der gesetzlichen USt.

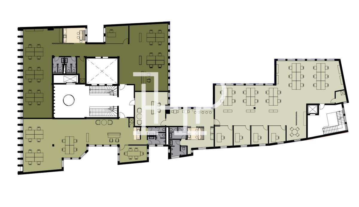
2. OG:

Sie haben Fragen?
Wenden Sie sich gerne an:

Team HH


Tel.: +49 40 2286011-0
E-Mail: anfrage@hamburg-properties.com

HPC Hamburg Properties Consulting GmbH & Co. KG
Alter Wall 34-36
20457 Hamburg

Lage Kriterien

  • Airport Hamburg: 11 km
  • A24: 5 km
  • Hauptbahnhof: 0,50 km
  • Böckmann's Daily food market: 400 m
  • Edeka: 450 m
  • Courtyard by Marriott Hamburg City: 400 m
  • U1/3 Hauptbahnhof Süd: 500 m
  • S Hauptbahnhof Süd: 500 m
  • Kurt-Schumacher-Allee: 140 m