Beste Büros Logo
Alster-Ost
Merken
Objektnummer: 389

Satellite Nine 4 | Hoch hinaus in St. Georg

Steindamm 94

Objektbeschreibung

Das Büro- und Geschäftsgebäude "Satellite Nine 4" präsentiert sich mit einer klar strukturierten Fassadengestaltung aus Naturstein und durchgehenden Fensterbändern, die für helle Arbeitsbereiche sorgen. Der modernisierte Eingangsbereich bietet einen repräsentativen Empfang und unterstreicht die zentrale Lage des Hauses. Auf insgesamt 14 Geschossen ermöglichen flexible Grundrisse eine variable Nutzung – von klassischen Einzelbüros bis hin zu offenen Arbeitswelten. In den oberen Etagen genießen Nutzer einen weiten Blick über Hamburg bis zur Alster und zur Skyline der Innenstadt.

Lage

Das Büro- und Geschäftsgebäude liegt zentral am Steindamm im lebendigen Stadtteil St. Georg, der in den vergangenen Jahren eine dynamische Entwicklung erfahren hat. Dank der Nähe zur U-Bahn-Station Lohmühlenstraße sowie zur S-Bahn-Station Berliner Tor besteht eine hervorragende Anbindung an den öffentlichen Nahverkehr. Auch mit dem PKW ist das Objekt bequem erreichbar. In fußläufiger Entfernung finden sich zahlreiche Cafés und Restaurants, die für eine abwechslungsreiche gastronomische Auswahl sorgen.
Besichtigungstermin anfragen

Weitere Angaben

  • Verfügbare Fläche (ca.) 5.707 m2
  • Teilbare Fläche (ca.) 400 m2
  • Mietpreis von 20,00€/m2 bis 25,00€/m2 mtl.
  •  
  • Nebenkosten 4,50€/m2 mtl.
  • Verfügbarkeit langfristig (ab 5 Monate)
  •  
  • Baujahr 1971
  • Provision* Provisionsfrei für den Mieter bei Anmietung von mind. 5 Jahren Laufzeit.

* Abhängig von der Mietdauer (siehe AGB)
Alle Preisangaben verstehen sich zzgl. der gesetzlichen USt.

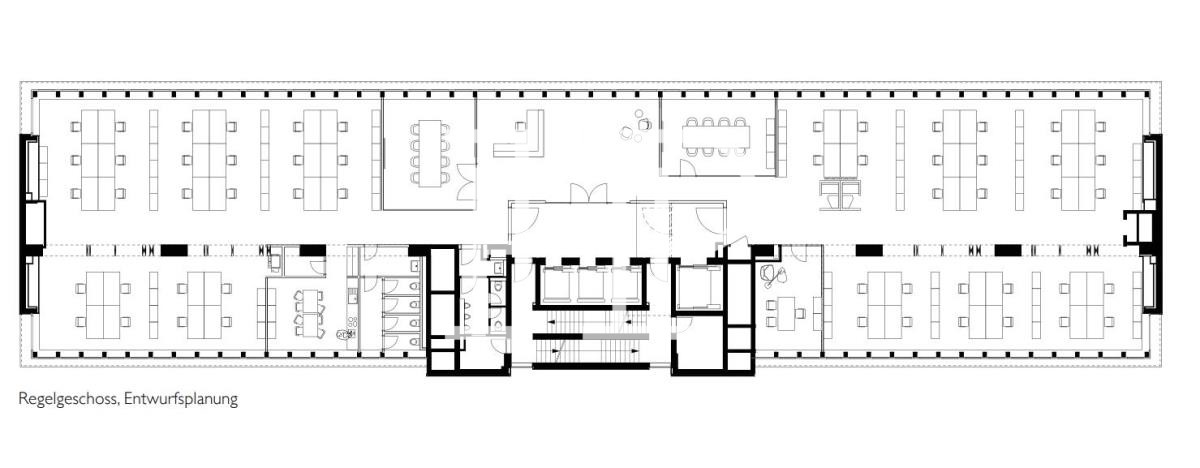
Regelgeschossplan:

Sie haben Fragen?
Wenden Sie sich gerne an:

Team HH


Tel.: +49 40 2286011-0
E-Mail: anfrage@hamburg-properties.com

HPC Hamburg Properties Consulting GmbH & Co. KG
Alter Wall 34-36
20457 Hamburg

Lage Kriterien

  • Airport Hamburg: 11,10 km
  • Elbbrücken B75: 4,60 km
  • Hauptbahnhof: 1,70 km
  • Giovanni am Park: 800 m
  • Edeka Niemerszein: 750 m
  • Motel One Hamburg Alster : 110 m
  • Lohmühlenstraße (U1): 20 m
  • S Berliner Tor (S1, S2): 650 m
  • U Lohmühlenstraße (Linie 16): 200 m