Beste Büros Logo
City
Merken
Objektnummer: 969

DJZ | Arbeiten im architektonischen Highlight

Stadthausbrücke 5-7

Objektbeschreibung

Die hochwertigen Büroeinheiten überzeugen durch eine erstklassige Ausstattung: Hohlraumböden für flexible Verkabelung, elegante Bodenbeläge, eine moderne Klima- und Belüftungsanlage für angenehmes Raumklima sowie eine gut ausgestattete Pantry. Zeitgemäße sanitäre Anlagen und ein Personenaufzug sorgen für Komfort. Optional sind Tiefgaragenstellplätze verfügbar. Kunstvolle Installationen in den Treppenhäusern schaffen eine inspirierende, repräsentative Arbeitsatmosphäre.

Lage

Das Objekt liegt optimal positioniert im Herzen Hamburgs, direkt an der Stadthausbrücke in der City. Diese zentrale Lage gewährleistet eine erstklassige Anbindung an den öffentlichen Nahverkehr sowie eine hervorragende Erreichbarkeit per Bahn, Auto und Flugzeug. Eine vielfältige Infrastruktur mit zahlreichen Gastronomieangeboten, Shops und Hotels schafft ein professionelles, attraktives Umfeld mit hoher Arbeits- und Aufenthaltsqualität.
Dieses repräsentative Büroobjekt in zentralster Hamburger City-Lage lohnt sich besonders für Unternehmen, die Wert auf eine prestigeträchtige Adresse und maximale Erreichbarkeit legen. Ideal geeignet ist es für Kanzleien, Beratungsfirmen, Finanzdienstleister oder Agenturen, die Kunden und Mitarbeiter gleichermaßen beeindrucken möchten – die direkte Nähe zur Stadthausbrücke signalisiert Professionalität und Standortstärke. Dank der hervorragenden ÖPNV-Anbindung (U-Bahn, S-Bahn, Busse in unmittelbarer Nähe) und der schnellen Erreichbarkeit von Hauptbahnhof sowie Flughafen eignet sich das Objekt hervorragend für Teams mit vielen Pend lern oder internationalen Geschäftsbeziehungen. Die dichte Infrastruktur mit Restaurants, Cafés, Hotels und Shops direkt vor der Tür erleichtert den Arbeitsalltag erheblich: schnelle Lunch-Meetings, After-Work-Treffen oder spontane Kundentermine werden zur Selbstverständlichkeit.
Die hochwertige Ausstattung – von der modernen Klimatisierung über flexible Hohlraumböden bis hin zur Pantry und den optionalen Tiefgaragenplätzen – spricht vor allem mittelständische Unternehmen und Startups an, die effiziente, repräsentative Räume ohne großen Eigenaufwand suchen. Die kunstvollen Treppenhaus-Installationen verleihen dem Gebäude eine besondere Atmosphäre, die kreative Branchen wie Werbe-, Medien- oder Designagenturen anspricht und eine inspirierende Arbeitsumgebung schafft. Auch für Firmen, die Wert auf Nachhaltigkeit und Mitarbeiterwohl legen, ist die kontrollierte Belüftung und das angenehme Raumklima ein Pluspunkt.
Zusammengefasst: Das Objekt lohnt sich für alle, die eine zentrale, gut angebundene und hochwertig ausgestattete Bürofläche suchen, ohne Kompromisse bei Repräsentation und Komfort einzugehen – ein Investment in Image, Produktivität und Mitarbeiterzufriedenheit.
Besichtigungstermin anfragen

Weitere Angaben

  • Verfügbare Fläche (ca.) 946 m2
  • Teilbare Fläche (ca.) 175 m2
  • Mietpreis ab 24,00€/m2 mtl.
  •  
  • Nebenkosten 4,50€/m2 mtl.
  • Verfügbarkeit 01.12.2025
  •  
  • Energiepass liegt vor
  • Baujahr 1995
  • Provision* Provisionsfrei für den Mieter bei Anmietung von mind. 5 Jahren Laufzeit.

* Abhängig von der Mietdauer (siehe AGB)
Alle Preisangaben verstehen sich zzgl. der gesetzlichen USt.

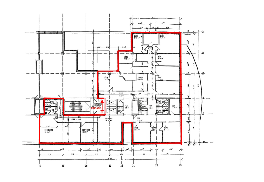
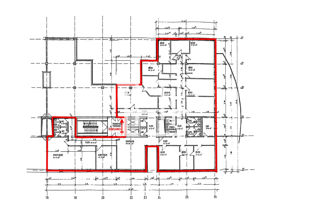
3. OG:

Sie haben Fragen?
Wenden Sie sich gerne an:

Team HH


Tel.: +49 40 2286011-0
E-Mail: anfrage@hamburg-properties.com

HPC Hamburg Properties Consulting GmbH & Co. KG
Alter Wall 34-36
20457 Hamburg

Lage Kriterien

  • Airport Hamburg: 10 km
  • Autobahn A1 / A7: 5 km
  • Hauptbahnhof: 1,20 km
  • Tortue: 100 m
  • EDEKA Struve: 200 m
  • Steigenberger: 200 m
  • Rödingsmarkt (U3): 200 m
  • Stadthausbrücke (S1, S3: 100 m
  • Stadthausbrücke (Linien 3, 17, 37): 100 m